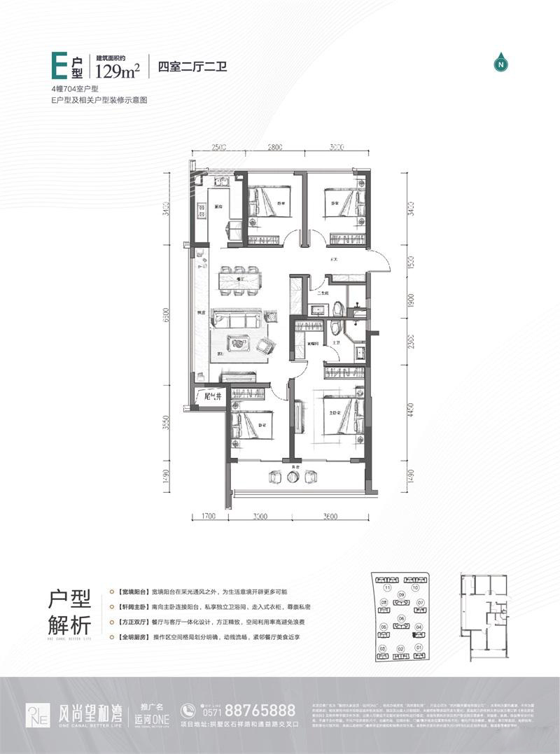
4室2厅2卫
约490.20万元
面积:
129平米
朝向:
南
首付:
147.06万
月供:
特惠楼盘
绿野御墅
售罄
地址:余杭区-小和山
户型:150方、395方、476方
均价
16858
元/平米
景观房
现房
毛坯
地铁盘
滨江·御江南
售罄
地址:萧山区-北干街道
户型:89-128㎡高层;约192-202㎡排屋
均价
33564
元/平米
商圈综合体
医疗配套
精装修
品牌房企
首开东城金茂府
售罄
地址:上城区-城东新城
户型:118-165㎡
均价
47580
元/平米
商圈综合体
医疗配套
精装修
品牌房企
科技住宅
地铁盘
空港公馆
售罄
地址:钱塘区-下沙开发区
户型:40-50㎡
均价
19000
元/平米
景观房
精装修
现房
时代滨江·翡翠之星
售罄
地址:萧山区-萧山新城
户型:89-138㎡
均价
36303
元/平米
商圈综合体
医疗配套
地铁盘
越秀景瑞·悦见山
售罄
地址:余杭区-临平
户型:89、120㎡
均价
22740
元/平米
商圈综合体
医疗配套
精装修
首开杭州金茂府
售罄
地址:拱墅区-申花
户型:
均价
52721
元/平米
商圈综合体
景观房
精装修
科技住宅
地铁盘
向江来时代中心
售罄
地址:上城区-钱江新城
户型:38-50平方米
均价
35540
元/平米
商圈综合体
医疗配套
精装修
低总价
地铁盘